Unit #107
#107 is For Rent, see the listing!
Facing west, the condo gets sun light all day long. Being a corner unit gives it exposure on the south side as well. Step directly out of the lanai into private green space within a walled courtyard – something unheard of at any price for a condo in the downtown.
The lanai is oversized with an outside storage closet and an electric, remote controlled Kevlar storm blind that rolls down. Rated to protect against a category 5 hurricane, it is rain and wind impervious and increases the floor space when down. The screen also allows variable shade control so the lanai can be used year round in the summer sun.
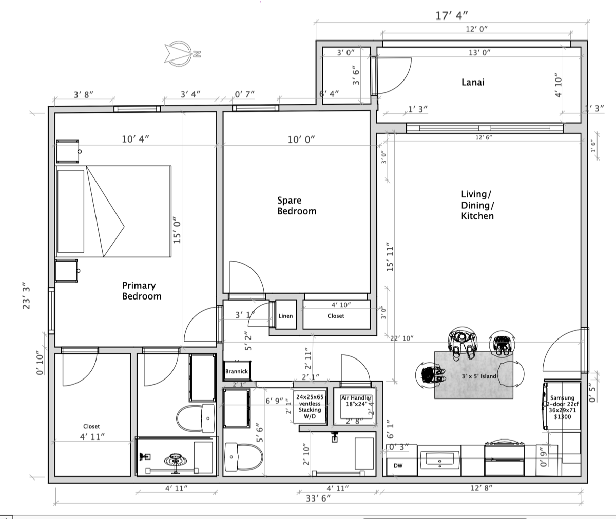
The Condo Floor Plan
A 12-foot slider and high ceilings with an open, useable floor plan make the condo feel spacious. Four closets allow plenty of storage. All new furnishings are all included.
The Condo Floor Plan
A 12-foot slider and high ceilings with an open, useable floor plan make the condo feel spacious. Four closets allow plenty of storage. All new furnishings are all included.
You can see how close the Citrus Square complex is; the pink building to the left houses a French bistro serving breakfast and lunch daily. Walk out your lanai through the gate to get your morning coffee!
A new model 75” Samsung Frame TV is in the living room. It can be set to Art Mode to rotate through different paintings and photos chosen from museum collections. The AC and heat system is new in 2024 and a Wyze thermostat allows remote control of the system from anywhere. The front door is also electronic and opens with either a keypad combination, finger print or
remotely for packages via the internet camera doorbell.
The living room is bright and roomy with high ceilings and fans in every room. Again, furnishings are included like the TV console, swivel chairs and a glove-soft leather sofa with dual powered recliners with motorized head and footrests.
The living room is bright and roomy with high ceilings and fans in every room. Again, furnishings are included like the TV console, swivel chairs and a glove-soft leather sofa with dual powered recliners with motorized head and footrests.
Solid wood Hickory cabinets (no laminates) are set off by Clé Zellige tiles handmade in Morocco, on the backsplash and front the island. Drawers are dovetailed. Under cabinet lighting show them off as well as the quartz countertops. Five-inch baseboards with new large-format ceramic tile flooring extends throughout the condo.
All new Samsung appliances are wi-fi enabled with a chic low-profile microwave, an ultra-quiet dishwasher and an induction range. The refrigerator’s doors are touch enabled to open, and the water dispenser/ice maker are hidden for a sleek appearance. The sink is quartz composite.
The primary bedroom has a queen bed, but is big enough for a king. As a corner unit there are two good size windows. The walk-in closet is large enough to house two bureaus freeing up floor space for an open look and feel.
There ensuite bathroom with an oversize shower with designer tile, teak bench and high-end Kohler fixtures with a Choreograph grab bar with a sliding teak soap tray. The sliding glass door is massive and 3/8” thick.
The second bedroom is also roomy, perfect as a home office.
Across the hall, the guest bath houses a super efficient LG heat pump, ventless stacked washer/dryer. There is also a large shower with custom green subway tiles, glass door and Kohler fittings and Choreograph shower safety rails.
Compact, the unit is inexpensive to heat/cool (~$65/month). Flood insurance on the structure is covered in the $522/month HOA fee which also pays for
